Clínica TS

El proyecto pretende alejarse del aspecto aséptico clásico de una clínica dental, pero manteniendo una estética de ambiente médico que transmita seguridad y transparencia.

Partiendo de un local en bruto, con una fachada de ladrillo y un orden de huecos contundente, que se potencia embocándolos en elementos de chapa lacada que incluyen la publicidad.

La utilización de materiales naturales que aportan calidez, refuerza una sensación de bienestar y tintes hogareños que confrontan lo frio e incómodo de la actividad que se desarrolla en el local.

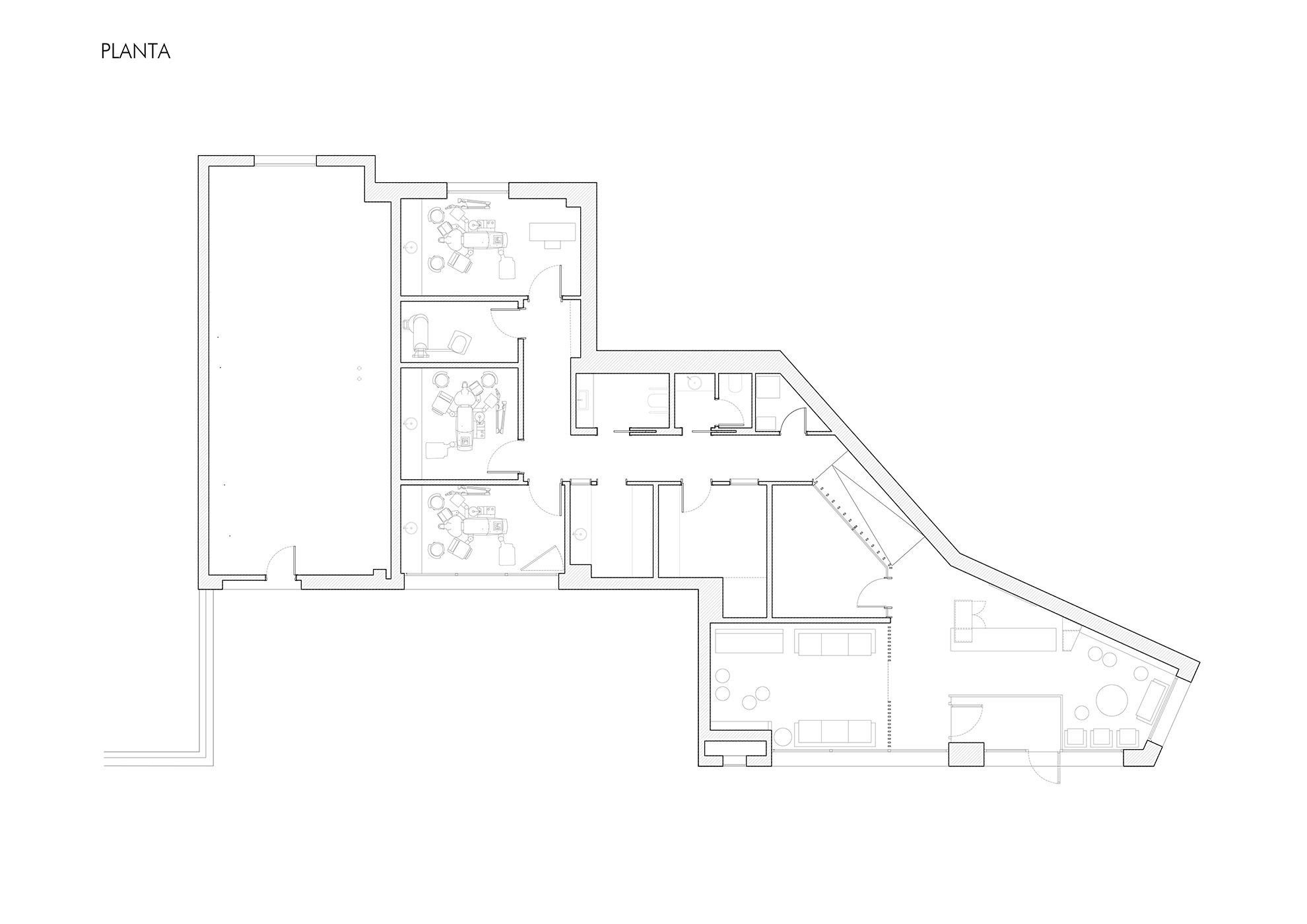
Se distinguen tres ambientes: 

Un primero de recepción y espera. Ésta segunda tras un filtro de listones que lo dota de cierta privacidad y asilamiento.

Un segundo paquete con los usos de administración y consulta, ligados a la circulación hacia la zona médica con un tratamiento de particiones mixtas de vidrio y palillería de roble que dotan de luz natural a estos programas a la vez que los diluyen en ese tránsito a través del pasillo, ensanchándolo.

Una tercera médica en la que existe una privacidad total y absoluta.

El proyecto incluye el diseño de mobiliario a medida inspirado por la propuesta arquitectónica.

Otros proyectos